Si va in Georgia con un volo diretto che atterrerà al Kutaisi ‘King David the Builder’ International Airport.
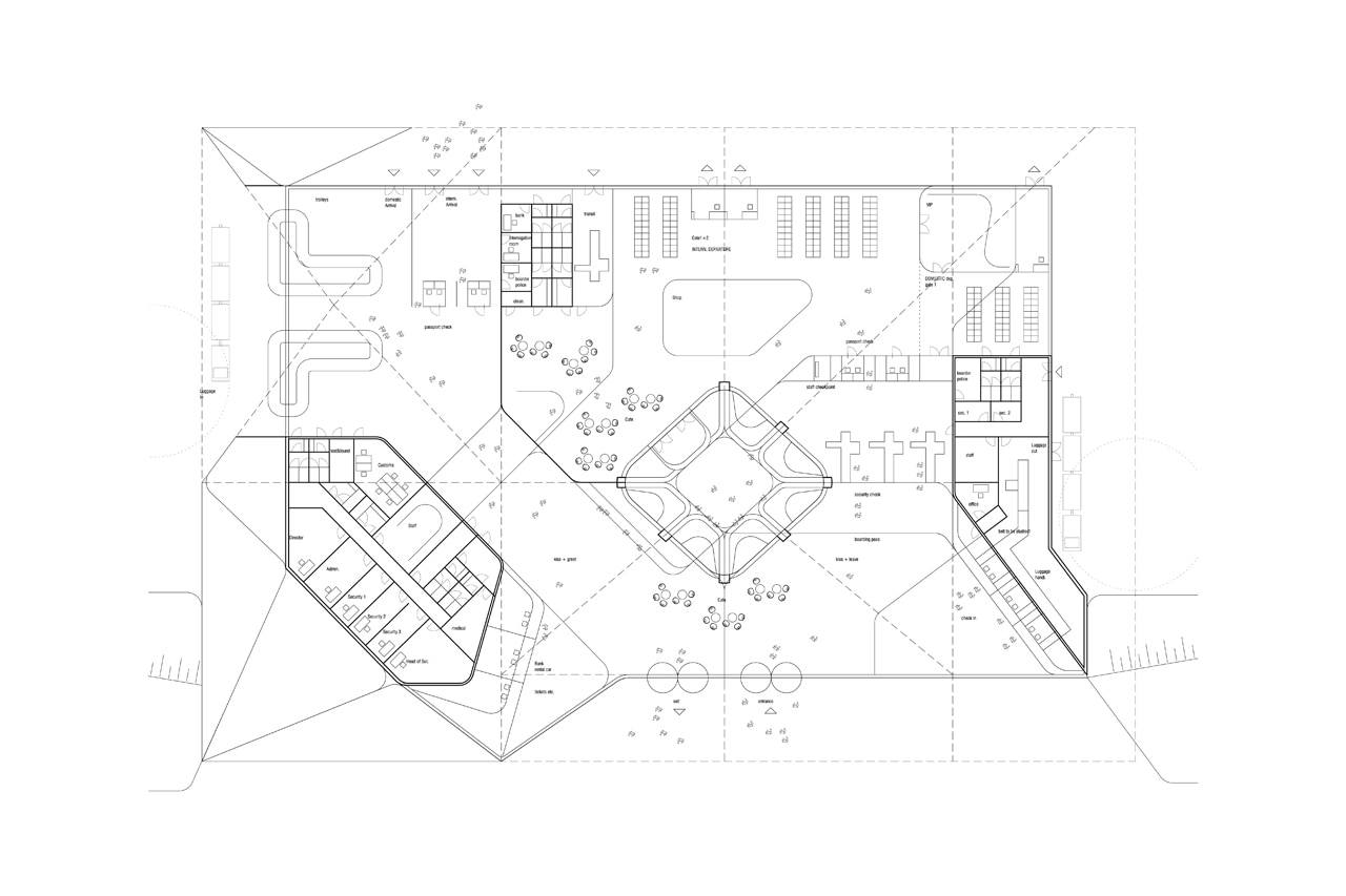
Un aeroporto che suscita grande interesse dal punto di vista architettonico. Progettato da UNStudio su una superficie di 12000 metri quadrati, è diventato uno dei centri aereoportuali più importanti grazie al milione di viaggiatori ci mettono piede. Questo non è solo un semplice aeroporto ma è anche una galleria d'arte dedicata ai giovani artisti georgiani.
Anche la torre di controllo è degna di nota. E' alta 55 m, si relaziona perfettamente il design dell'aeroporto e consente una visuale a 360 gradi sulle piste. L'aspetto interessante? Ve lo dico subito: l'esterno della torre è costituito da fori che consentono il passaggio del vento fungendo così da sistema di ventilazione. In particolare, al variare della velocità del vento, i LED presenti in questi fori cambiano colore creando un effetto stilistico davvero unico!






Nessun commento:
Posta un commento